高州市中山路130号商场招租项目公开招租公告
高州市中山路130号商场招租项目公开招租公告
茂名市汇智招标代理有限公司受高州市商业储运公司的委托,对高州市中山路130号商场招租项目(项目编号:MMHZ-26GB-002)进行公开招租,欢迎竞租人参与竞租。
一、招租租赁范围
招租租赁范围:高州市中山路130号商场招租项目,竞租人可就商场进行竞租。
二、租期及竞租报价底价
1、租赁期限:5年。从签订租赁合同开始计起,前期设15天装修期,装修期在租赁期内,免租金。
2、招租方式:
|
招租方式的确定 |
具体时间安排 |
||
|
方式一 |
公告期满,如征集到不少于2个(含2个)符合条件的意向方 |
现场增价竞租 |
2026年02月03日09时00分(北京时间) |
|
方式二 |
公告期满,如只征集到一个符合条件的意向方 |
按起租价成交 |
2026年02月03日09时00分(北京时间) |
3、招租面积、竞租底价及方式:
|
高州市中山路130号商场招租项目明细表 |
||||||
|
序号 |
招租标的 |
位置 |
面积 |
月租金底价 |
年租金 (元/年) |
租期(年) |
|
1 |
高州市中山路130号商场 |
高州市中山路130号 |
2829.40 |
83266.00 |
999192.00 |
5 |
|
合计 |
2829.40 |
83266.00 |
999192.00 |
|
||
|
面积为大约数,实际招租面积以现状为准。 |
||||||
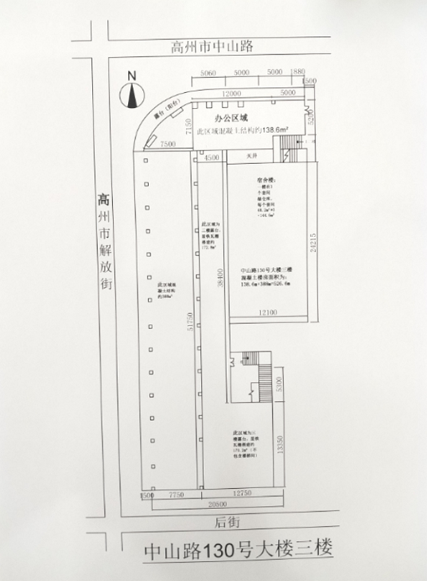
商场平面图如下:
竞租方式:采用明价公开举牌竞价的方式对商场月租金进行竞价,采取“增价式”的方式进行,遵循“价格优先、时间优先、价高者得”的原则,同等价位条件下以竞价主持人确认的应价为准,加价幅度 :每举牌一次的加价幅度为在月租金底价的基础上加1000元/月,在不低于月租金底价基础上按照价高者得的原则确定竞得人。原承租人在同等报价时享有优先权。
三、竞租人资格
1、竞租人已登记报名并获取本项目招租文件并具有独立承担民事责任能力企业法人、个体经商户、自然人;
2、竞租人不准经营化学物品、易燃易爆品和政策不允许经营的业务。
3、本项目不接受联合体竞租。
四、竞租报名
竞租人请于2026年01月14日09时00分至2026年01月20日17时30分前(北京时间,节假日除外)到茂名市汇智招标代理有限公司(高州市潘州街道谢村居委会桂圆东路坡耀村三、五小组农民留用地B地块30号(鲲鹏大厦A)6楼)报名并购买招租文件,招租文件售价300元(人民币),售后不退。领购招租文件时需携带的材料:
1、企业法人(或个体经营)营业执照复印件加盖公章(原件备查);法定代表人身份证明书原件及法人身份证复印件加盖公章(原件备查);法人授权委托书原件及被授权人身份证复印件加盖公章(如有,原件备查)。
2、自然人竞租的提供身份证复印件(原件备查)
五、竞租保证金
竞租保证金99919.20元(人民币玖万玖仟玖佰壹拾玖元贰角整),竞租前(2026年02月03日09时00分前)缴交,竞租保证金以到招租代理账户为准,逾期无效。竞租人必须按招租文件要求交纳竞租保证金。
六、竞租文件提交截止时间和地点
1、开始受理竞租文件时间:2026年02月03日08时30分(北京时间)
2、竞租文件提交截止时间:2026年02月03日09时00分(北京时间)
3、地点:高州市潘州街道谢村居委会桂圆东路坡耀村三、五小组农民留用地B地块30号(鲲鹏大厦A)6楼
七、竞租时间及地点
1、竞租时间:2026年02月03日09时00分(北京时间)
2、地点:高州市潘州街道谢村居委会桂圆东路坡耀村三、五小组农民留用地B地块30号(鲲鹏大厦A)6楼
八、联系方式
招租人:高州市商业储运公司
联系人:陈先生
联系电话:13318533445
招租代理机构联系人:冼小姐
电话:0668-6623366
联系地址:高州市潘州街道谢村居委会桂圆东路坡耀村三、五小组农民留用地B地块30号(鲲鹏大厦A)6楼
九、公告期限、发布公告的媒介:
公告期限:自本公告发布之日起5个工作日。
发布公告的媒介:茂名市汇智招标代理有限公司网(http://www.mmhzzb.com)
茂名市汇智招标代理有限公司
日期:2026年01月13日
- 上一篇:高州市中山路130号商场招租项目更正公告(第一次) 2026/1/15
- 下一篇:根子镇暨亚盘谷文旅开发与产业发展策划项目采购更正公告(第一次 2025/12/15
